Твердопаливний котел Altep Compact, 20 кВт – це сучасне рішення для ефективного та економного опалення приватних будинків, невеликих комерційних об’єктів, виробничих майстерень чи державних установ. Його конструкція поєднує високу продуктивність і компактність, що робить котел ідеальним вибором для приміщень із обмеженою площею. Потужності 20 кВт достатньо для стабільного обігріву приміщень до 200 м², залежно від теплоізоляції та умов експлуатації. Котли серії Altep Compact створені спеціально для тих, хто цінує надійність, економічність та простоту використання. Модель 20 кВт є однією з найпопулярніших у лінійці завдяки поєднанню компактних габаритів та високої продуктивності. Конвекційна частина обладнана сталевим теплообмінником, який завдяки особливій конструкції максимально ефективно передає тепло до системи опалення. Водночас глибока топочна камера дозволяє завантажувати великі поліна дров, що зменшує кількість підходів до котла та забезпечує тривалу роботу між завантаженнями. Водонаповнені колосники сприяють кращому згоранню палива, підвищують тепловіддачу і збільшують ресурс котла. Це рішення дозволяє паливу вигорати повністю, без залишку вугілля чи недогорілих фрагментів. Ще одна перевага моделі – можливість додатково оснастити котел вентилятором та блоком управління, що перетворює його на практично автоматизоване джерело тепла. Така функція буде особливо корисною для власників, які хочуть мінімізувати час на контроль роботи обладнання. При цьому, завдяки компактним розмірам, котел Altep Compact 20 кВт не потребує великої площі для монтажу. Це робить його зручним для встановлення навіть у невеликих котельнях чи підсобних приміщеннях. 360 Твердопаливний котел Altep Compact, 20 кВт – це оптимальний вибір для тих, хто шукає поєднання економічності, надійності та зручності. Завдяки продуманій конструкції, універсальності палива та високому ККД він забезпечить комфортне тепло у вашому будинку чи на підприємстві протягом багатьох років. Вибираючи Altep Compact, ви отримуєте не просто котел, а ефективне рішення для створення тепла і затишку за доступною ціною.Твердопаливний котел Altep Compact, 20 кВт – надійне та економне опалення
Основні переваги та унікальні особливості
Опис товару та особливості конструкції
Для кого підійде котел Altep Compact 20 кВт?
Технічні характеристики


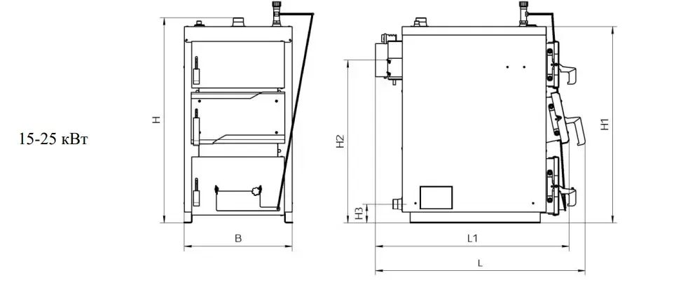
Параметр Од. вим. Альтеп Compact Номінальна потужність котла кВт 15 20 25 Площа теплообмінника м2 1,6 2,1 2,5 Розміри топки глибина мм 540 540 540 об’єм дм3 66 83 103 Водяна ємність котла л 62 72 80 Вага котла без води кг 230 245 266 Рекомендована мін. температура води °C 58 58 58 Максимальна температура води °C 85 85 85 Номінальний тиск води МПа 0,15 0,15 0,15 Приєднувальні розміри димоходу мм 159 159 159 Діаметр патрубків мережної води (Ду) мм 40 40 40 Габарити

Параметр Од. вим. Альтеп Compact Габаритні розміри котла кВт 15 20 25 B мм 520 520 520 H мм 900 990 1090 H1 мм 850 945 1045 H2 мм 719 783 883 L мм 1020 1020 1020 Розміри завантажувальних
дверцятвисота, мм 190 190 190 ширина, мм 360 360 Відеоогляд котла

