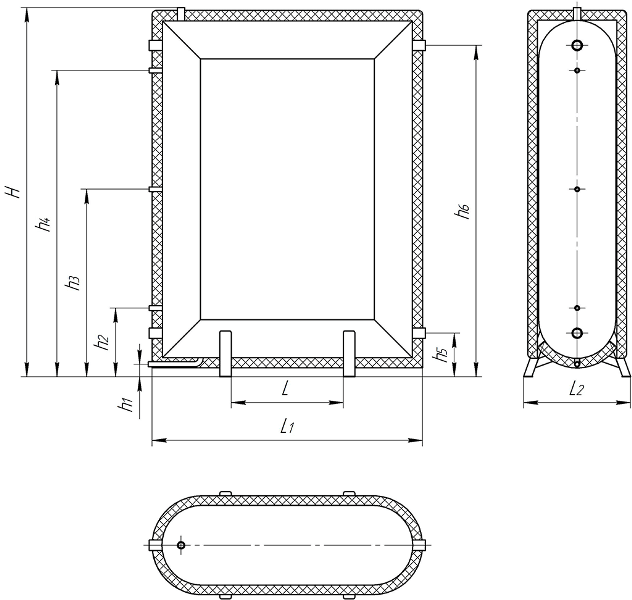
Плоский теплоакумулятор NEUS об'ємом 1500 літрів — це надійне рішення для акумулювання та збереження тепла в системах опалення. Завдяки своїй конструкції, ця модель ідеально підходить для встановлення в приміщеннях з обмеженим простором, таких як існуючі котельні або технічні кімнати. Буферна ємність виготовлена зі сталі товщиною 3 мм, що гарантує її довговічність і стійкість до високих температур та тиску. Теплоакумулятор вкритий термоізоляцією товщиною 50 мм зі щільністю 20 кг/м³, яка ефективно зберігає тепло впродовж тривалого часу, зменшуючи тепловтрати та витрати на опалення. Теплоакумулятор NEUS підходить для використання з твердопаливними котлами, електричними або газовими котлами, а також з альтернативними джерелами енергії — сонячними колекторами чи тепловими насосами. Завдяки універсальному розміщенню патрубків, підключення до різних систем є простим та зручним. Варіант виконання Vбак, л Габарити, мм Приєднувальні розміри, мм Маса (без води), кг Н L L1 L2 h1 h2 h3 h4 h5 h6 ТАП0.500 480 1915 330 950 555 65 355 970 1585 225 1715 117 1’’ ¾’’ ½’’ ½’’ ½’’ 1 ½’’ 1 ½’’ ТАП0.800 780 1915 600 1400 555 65 355 970 1585 225 1715 170 1’’ ¾’’ ½’’ ½’’ ½’’ 1 ½’’ 1 ½’’ ТАП0.1000 990 1915 830 1750 555 65 355 970 1585 225 1715 207 1’’ ¾’’ ½’’ ½’’ ½’’ 1 ½’’ 1 ½’’ ТАП0.1500 1440 1915 1580 2500 555 65 355 970 1585 225 1715 294 1’’ ¾’’ ½’’ ½’’ ½’’ 1 ½’’ 1 ½’’ H– патрубок підключення групи безпеки; Теплоакумулятор NEUS 1500 л без вбудованих теплообмінників — це оптимальне рішення для ефективного збереження тепла, енергоощадного опалення та створення комфортного клімату у вашому будинку. Інвестуйте в надійність, енергоефективність та сучасні технології разом із NEUS.Теплоакумулятор плоский без теплообмінників NEUS 1500 л
Переваги теплоакумулятора NEUS 1500 л без теплообмінника:
Сфера застосування
Технічні характеристики плоских буферних ємностей

h1 – патрубок для зливу теплоносія;
h2 – h4 – патрубки для вимірювання температури;
h5 – h6 – патрубки подаючих та зворотніх магістралей.