Оптимальний вибір для приватних будинків, котеджів і невеликих комерційних приміщень. Теплоакумулятор без теплообмінників NEUS 500 л – це сучасне обладнання для накопичення та збереження теплової енергії, яке допомагає зробити систему опалення стабільнішою, ефективнішою та економнішою. Ємність об'ємом 500 літрів ідеально підходить для обігріву житлових будинків, а також комерційних об’єктів, таких як майстерні, СТО чи офіси. Цей теплоакумулятор стане надійним помічником для користувачів, які прагнуть зменшити витрати на опалення, забезпечити більш рівномірне тепло та зменшити навантаження на котел. Особливо корисний у поєднанні з твердопаливними котлами, які працюють циклічно. Буферна ємність NEUS 500 л акумулює надлишкову теплову енергію, яку виробляє котел у періоди пікової роботи, та поступово віддає її в систему опалення в міру потреби. Таким чином забезпечується стабільна температура в будинку, навіть коли котел не працює. Це особливо важливо при використанні твердопаливних котлів, які не можуть точно регулювати подачу тепла. Відсутність вбудованих теплообмінників робить цю модель універсальною і бюджетнішою. У разі потреби, за додатковим замовленням, можна доукомплектувати бак теплообмінником або фланцем під ТЕН. Такий підхід дозволяє адаптувати обладнання до конкретних умов експлуатації, не переплачуючи за непотрібні функції. Всі моделі NEUS, включно з теплоакумулятором на 500 л, виготовляються на сучасному українському заводі з дотриманням високих стандартів якості. Зварні шви проходять контроль герметичності, а ізоляційні матеріали забезпечують ефективне збереження тепла. Товщина стінок (3 мм) оптимально балансує між міцністю та вагою конструкції, дозволяючи безпечно експлуатувати бак при високому робочому тиску. Теплоакумулятор без теплообмінників NEUS 500 л підійде як для нових систем опалення, так і для модернізації існуючих. Це чудове рішення для: Для зручності планування монтажу нижче представлено схеми теплоакумуляторів NEUS з різними варіантами розташування патрубків (0°, 90°, 180°), а також детальна таблиця з технічними характеристиками моделі об'ємом 500 літрів: Варіант виконання Vбак, л Габарити, мм Приєднувальні розміри, мм Маса (без води), кг Н Ød ØD ØD1 h1 h2 h3 h4 h5 h6 h7 h8 ТА0.200 200 1840 325 400 500 60 230 360 1500 1630 230 930 1630 78 1’’ ¾’’ 1 ½’’ 1 ½’’ 1 ½’’ 1 ½’’ ½’’ ½’’ ½’’ ТА0.320 320 1885 400 500 600 50 250 380 1520 1650 250 950 1655 100 1’’ ¾’’ 1 ½’’ 1 ½’’ 1 ½’’ 1 ½’’ ½’’ ½’’ ½’’ ТА0.500 480 1935 450 600 710 65 285 415 1555 1685 285 985 1685 124 1’’ ¾’’ 1 ½’’ 1 ½’’ 1 ½’’ 1 ½’’ ½’’ ½’’ ½’’ ТА0.800 780 2000 600 750 860 65 315 445 1585 1715 315 1015 1715 160 1’’ ¾’’ 1 ½’’ 1 ½’’ 1 ½’’ 1 ½’’ ½’’ ½’’ ½’’ ТА0.1000 990 2045 700 850 960 70 340 470 1610 1740 340 1040 1740 185 1’’ ¾’’ 1 ½’’ 1 ½’’ 1 ½’’ 1 ½’’ ½’’ ½’’ ½’’ ТА0.1500 1440 2125 850 1000 1100 85 390 520 1660 1790 390 1090 1790 226 1’’ ¾’’ 1 ½’’ 1 ½’’ 1 ½’’ 1 ½’’ ½’’ ½’’ ½’’ ТА0.2000 2050 2150 1000 1200 1400 90 435 565 1605 1735 435 1085 1735 288 1’’ ¾’’ 2’’ 2’’ 2’’ 2’’ ½’’ ½’’ ½’’ ТА0.3000 2890 2340 1150 1400 1600 100 480 610 1750 1880 480 1180 1750 420 1’’ ¾’’ 2’’ 2’’ 2’’ 2’’ ½’’ ½’’ ½’’ ТА0.4000 3875 2395 1300 1600 1800 80 500 630 1770 1900 500 1200 1900 502 1’’ ¾’’ 2’’ 2’’ 2’’ 2’’ ½’’ ½’’ ½’’ ТА0.5000 4880 2895 1300 1600 1800 80 500 630 2270 2400 500 1450 2400 580 1’’ ¾’’ 2’’ 2’’ 2’’ 2’’ ½’’ ½’’ ½’’ ТА0.6000 5850 3395 1300 1600 1800 80 530 680 2720 2870 530 1700 2870 660 1’’ ¾’’ 3’’ 3’’ 3’’ 3" ½’’ ½’’ ½’’ ТА0.7000 6850 3895 1300 1600 1800 80 530 680 3220 3370 530 2000 3370 740 1’’ ¾’’ 3’’ 3’’ 3" 3" ½’’ ½’’ ½’’ ТА0.10000 9850 3710 1650 2000 2200 606 756 2946 3096 606 1851 3096 1113 1’’ ¾’’ 3’’ 3’’ 3" 3" ½’’ ½’’ ½’’ H – патрубок підключення групи безпеки; H – патрубок підключення групи безпеки; Теплоакумулятор без теплообмінників NEUS 500 л – це надійне, енергоощадне та зручне рішення для будь-якої системи опалення. Завдяки якісним матеріалам, продуманій конструкції та доступній ціні, він стане вигідною інвестицією у комфорт вашого приміщення. Оберіть ефективність, яка працює на вас – замовляйте теплоакумулятор NEUS 500 л вже сьогодні!Теплоакумулятор без теплообмінників NEUS 500 л – ефективне рішення для енергоощадного опалення
Основні переваги моделі NEUS 500 л без теплообмінників:
Як працює теплоакумулятор NEUS 500 л та яку користь приносить?
Надійна конструкція – запорука довготривалої експлуатації
Універсальність використання
Схеми підключення

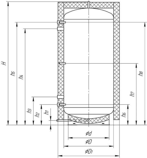
Технічні характеристики ємності Neus з виходами патрубків під 0 градусів

70
h1 – патрубок для зливу теплоносія;
h2 – h5 – патрубки подаючих та зворотніх магістралей;
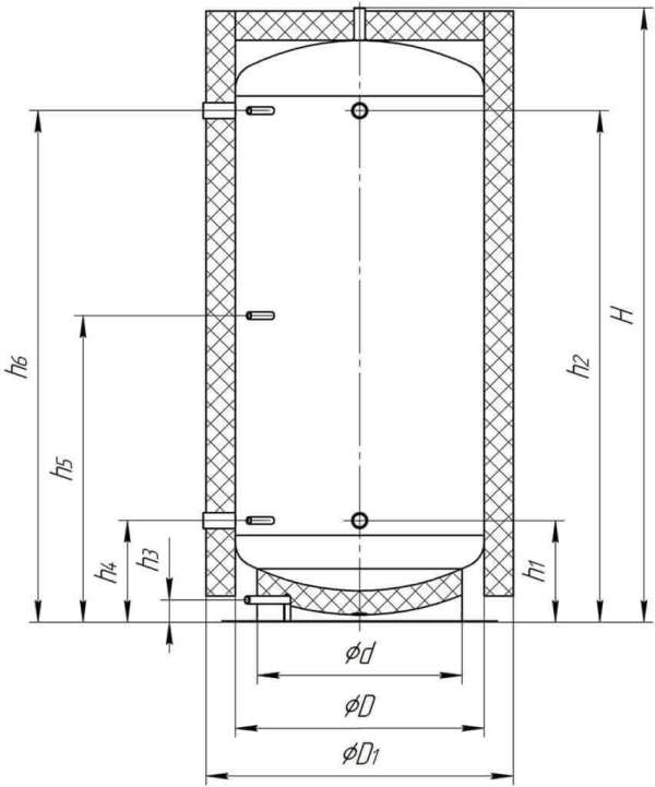
h6 – h8 – патрубки для вимірювання температури.Технічні характеристики ємності Neus з виходами патрубків під 90 та 180 градусів


h1, h2 – патрубки подаючих та зворотніх магістралей;
h3 – патрубок для зливу теплоносія;
h4 – h6 – патрубки для вимірювання температури.