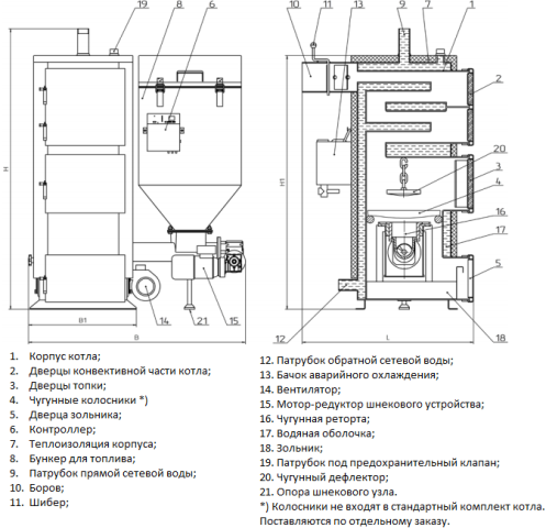
Пелетний котел Альтеп Duo Pellet можна використовувати як джерело тепла в промислових об'єктах, житлових приміщень та громадських будівель. Основною перевагою цієї моделі є автоматичне подання палива в камеру згоряння. Паливом для котла Duo Pellet може виступати дрібнофракційне вугілля (5-25 мм), а також пелета з тирси. Котел складається з таких основних вузлів: Завантажується паливо в бункер, а потім за допомогою шнекового механізму подається в топку. Задана температура досягається шляхом зміни швидкості подачі пелети або вугілля на пальник. Після згоряння відходи у вигляді золи рухаються на край ретортного пальника і падають в зольну камеру котла. У разі відхилення від заданої користувачем температури, автоматика передає сигнал нагнітальному вентилятору, а той змінює оберти. Цей процес дозволяє збільшити продуктивність та економічність котла. До монтажної схеми котла рекомендується включити триходовий клапан, що дозволить виключити появи конденсату на стінках теплообмінника, і як наслідок котел матиме більш тривалий термін експлуатації. Котел має прямокутну форму. Між стінами теплообмінника розташована водяна сорочка, за якою циркулює теплоносій. Нижче за теплообмінник розташована камера згоряння. Чотирьохходовий горизонтальний теплообмінник забезпечує високий коефіцієнт корисної дії опалювального агрегату. Чавунна плита та повітряна форсунка забезпечує рівномірний розподіл палива по теплообміннику. Дефлектор знаходиться вище ретортної топки, а форсунки - в бічних частинах реторти. Газоподібні продукти горіння видаляються з котла через борів, що розташований у задній частині котла. Борів укомплектований шибером, що дозволяє регулювати тягу в казані. Особова частина котла обладнана: Верхня частина теплообмінника обладнана патрубком подачі мережної води та штуцером для монтажу групи безпеки. Нижня частина задньої стінки – патрубком зворотної води. Патрубок для зливу теплоносія розташований на бічній частині казана. Корпус котла Альтеп КТ-2Е-Ш відокремлений від теплообмінника мінеральною ватою. Основні функції блоку автоматики: * погодний датчик є додатковою опцієюПелетний котел Альтеп (Altep) Duo Pellet (КТ-2Е-SH) 75 кВт
Основні переваги котла Альтеп (Altep) Duo Pellet 75 кВт:
Принцип роботи котла Альтеп Duo Pellet 75 кВт:
Конструкція Альтеп КТ-2Е-SH:

/catalog/Tovar/Altep/KT-2ESH/trio.png">