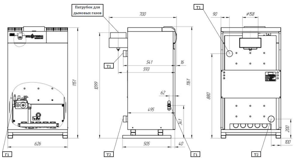
Це серія димохідних підлогових газових котлів потужністю 50 кВт - з п'єзорозпалом (енергонезалежні), які можна підключати каскад. Котловий підлогу оброблений актуальним дизайном, а також гарною обшивкою, яку виробляють за допомогою італійського та німецького обладнання, застосовуючи при цьому порошкове фарбування (нанесення на металеві поверхні порошку з подальшим утворенням шару в печах полімеризації). Усередині котлів знаходяться запатентовані серії теплообмінники особливої будови. Опалювальне обладнання включає зручний пульт управління, газову автоматику (італійського та німецького виробництва), а також інжекційний пальник. Все це робить котли Колві максимально продуктивними та надійними під час робочого процесу. Котли Колві мають три типи газових клапанів, зроблених у Німеччині та Італії. Ще один плюс даних котлів – завдяки модуляційній автоматиці клапана споживання газу зменшується до 20-30 відсотків, порівняно з аналогічним обладнанням. Експлуатація можлива в системі опалення відкритого типу, де природна циркуляція теплового носія, а також в системі закритого типу, що має циркуляційний насос. Під час спільної роботи з топковими котли з потужністю 50 кіловат показали відмінні результати. 1-теплообмінник; 2-топка; 3-збірник продуктів згоряння; 4-газопальникове пристрій; 5-фронтальний лист газопальникового пристрою; 6-блок запальника; 7-газовий колектор із соплами; 8-газовий редуктор (блок клапанів); 9-бокові стінки декоративного кожуха; 10-передня стінка декоративного кожуха; 11-верхня стінка декоративного кожуха; 12 та 13-патрубки під-ключення до системи опалення; 14-патрубок для відведення продуктів згоряння; 15-блок аварійного термостату; 16-стабілізатор тяги; 17-датчик тяги (термостат); 18-пластикова декоративна кришка; 19-пальники; 20-жарові (димогарні) труби; 21-турбулізатори; 22-приладова стінка декоративного кожуха; 23-термоманометр; 24-ручка регулятора термостата; 25-оглядове вікно; 26-гільза з датчиками температури; 27-бобишка для датчика тиску; 28-боковий короб. Т1 – вихід води в систему опалення (пряма вода); Т2 – вхід води із системи опалення (зворотна вода);> p> Г1 – вхід природного газу низького тиску.Газові котли Колви Eurotherm Technology KTH 50 СР
Характерні якості:
Зображення панелі керування газовими котлами Eurotherm Technology KTH 50 СР:

Конструкція Eurotherm Technology 50 РЄ:


