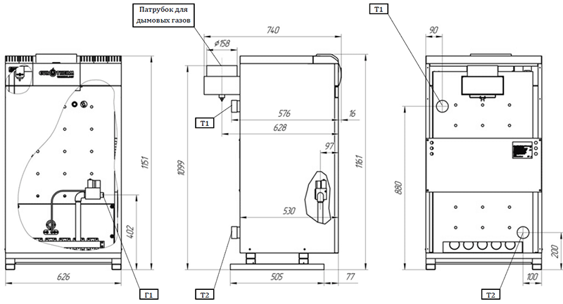
Це серія димохідних газових котлів підлогою потужністю 50 кВт - з електронним управлінням, які можливо підключати каскад. Газовий котел Колвітерм КТН 50 CE – підлоговий котел з електрокеруванням Котел підлоговий Колві оброблений актуальним дизайном, а також гарною обшивкою, яку виробляють за допомогою італійського та німецького обладнання, застосовуючи при цьому порошкове фарбування (нанесення на металеві поверхні порошку з подальшим утворенням шару в печах полімеризації). Усередині котлів знаходяться запатентовані серії теплообмінники особливої будови. Опалювальне обладнання включає зручний пульт управління, газову автоматику (італійського та німецького виробництва), а також інжекційний пальник. Все це робить котли Колві максимально продуктивними та надійними під час робочого процесу. Котли Колві мають три типи газових клапанів, зроблених у Німеччині та Італії. Ще один плюс даних котлів – завдяки модуляційній автоматиці клапана споживання газу зменшується до 20-30 відсотків, порівняно з аналогічним обладнанням. Експлуатація можлива в системі опалення відкритого типу, де природна циркуляція теплового носія, а також в системі закритого типу, що має циркуляційний насос. Під час спільної роботи з топковими котли з потужністю 50 кіловат показали відмінні результати. 1 - теплообмінник; 2 – топка; 3 – збірка продуктів згоряння; 4 - газопальниковий пристрій; 5 - фронтальний лист газопальникового пристрою; 6 – блок запальника; 7 - газовий колектор із соплами; 8 – газовий редуктор (блок клапанів); 9 – бічні стінки декоративного кожуха; 10 – передня стінка декоративного кожуха; 11 – верхня стінка декоративного кожуха; 12 та 13 - патрубки підключення до системи опалення; 14 – патрубок для відведення продуктів згоряння; 15 – блок аварійного термостата; 16 – стабілізатор тяги; 17 - датчик тяги (термостат); 18 – пластикова декоративна кришка; 19 - пальники; 20 - жарові (димогарні) труби; 21 - турбулізатори; 22 – приладова стінка декоративного кожуха; 23 – термоманометр; 24 – ручка регулятора термостата; 25 - оглядове вікно; 26 - гільза з датчиками температури; 27 - бобишка для датчика тиску; 28 - бічний короб. Т1 – вихід води до системи опалення (пряма вода); Т2 – вхід води із системи опалення (зворотна вода); Г1 – вхід природного газу низького тиску.Газові котли Колві Eurotherm Technology 50 СЕ
Характерні якості:
Зображення панелі керування газовими котлами Eurotherm Technology 50 СЕ:

Конструкція Eurotherm Technology 50 РЄ:


